HLP Controls
UFR1001E - Voltage & Frequency Relay
Couldn't load pickup availability
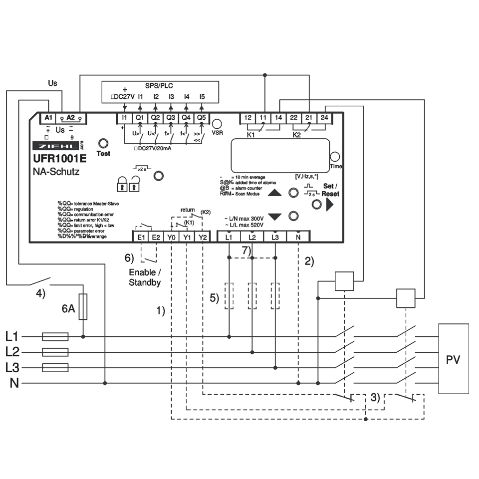
Model: UFR1001E - Voltage and Frequency Relay Also called a Mains protection Relay.
IEC60255 approved.
Ziehl made in Germany
Secondary mains protection relay
Pre programmed for Australian standards
Model: UFR1001E Ziehl Inc GST
Model: UFR1001E
Mains Protection Relay
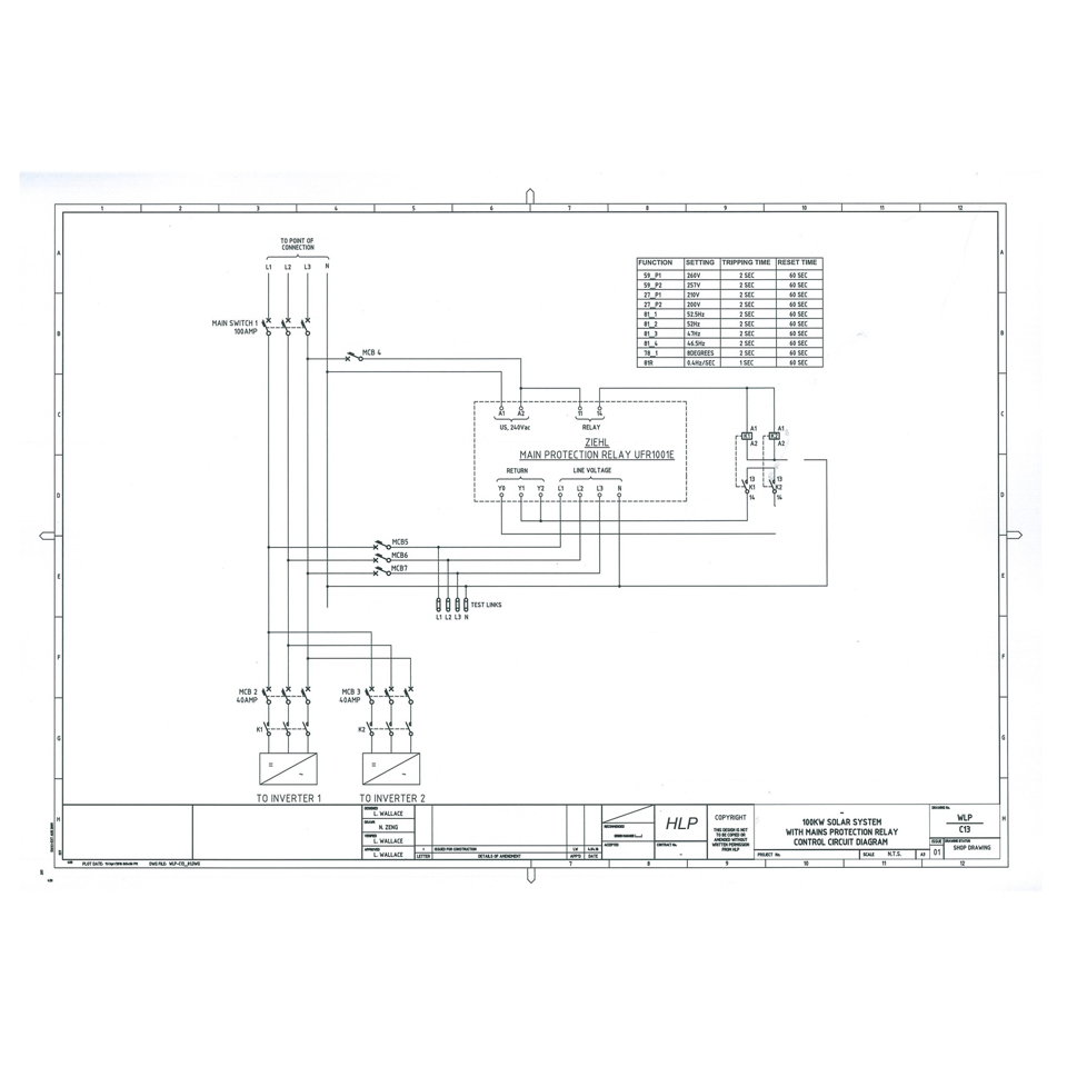
Solar grid protection relay, used when systems over 30 Kw and under 150Kw need to be installed and a Secondary protection relay is required by the Electricity suppliers. Can be supplied Pre programed for any Area. Easily changed on site without any Tools ( Password protected).
IEC60255 Approved, Suitable for Ausgrid, Ergon, Energex, Citi Power, Powercor, NT and SA, Essential, Endeavour Etc.
These are new to the market and HLP Controls have been appointed as the Australian distributor. The German made Ziehl ZFR1001E includes Rocof, Vector shift and all other Voltage alarms. The unit comes preset for your requirements, install as part of your system or HLP controls can supply in an enclosure wired ready to install.
Under volts Uv 59
Over Volts Ov 27
Under / Over Frequency Uhz 81
Vector Shift 78
ROCOF 81R
We supply a typical wiring drawing that will meet your suppliers requirements. Not many other parts needed to make a complete system.
Ask our office for details.
In stock
Share

